Lokal handlowo-usługowy 46m2 - Intermarche Krzeszowice
Krzeszowice Pokaż na mapie ›
Dodane: Piątek, 12 Grudzień, 2025 13:10
1 840 zł
Szczegóły ogłoszenia
- Kategoria: Biura i lokale / Do wynajęcia
- Przeznaczenie:Handel i Usługi
- Powierzchnia:45,99 m2
- Sprzedaż:Bez pośredników
- Cena: 1 840 zł
Opis oferty
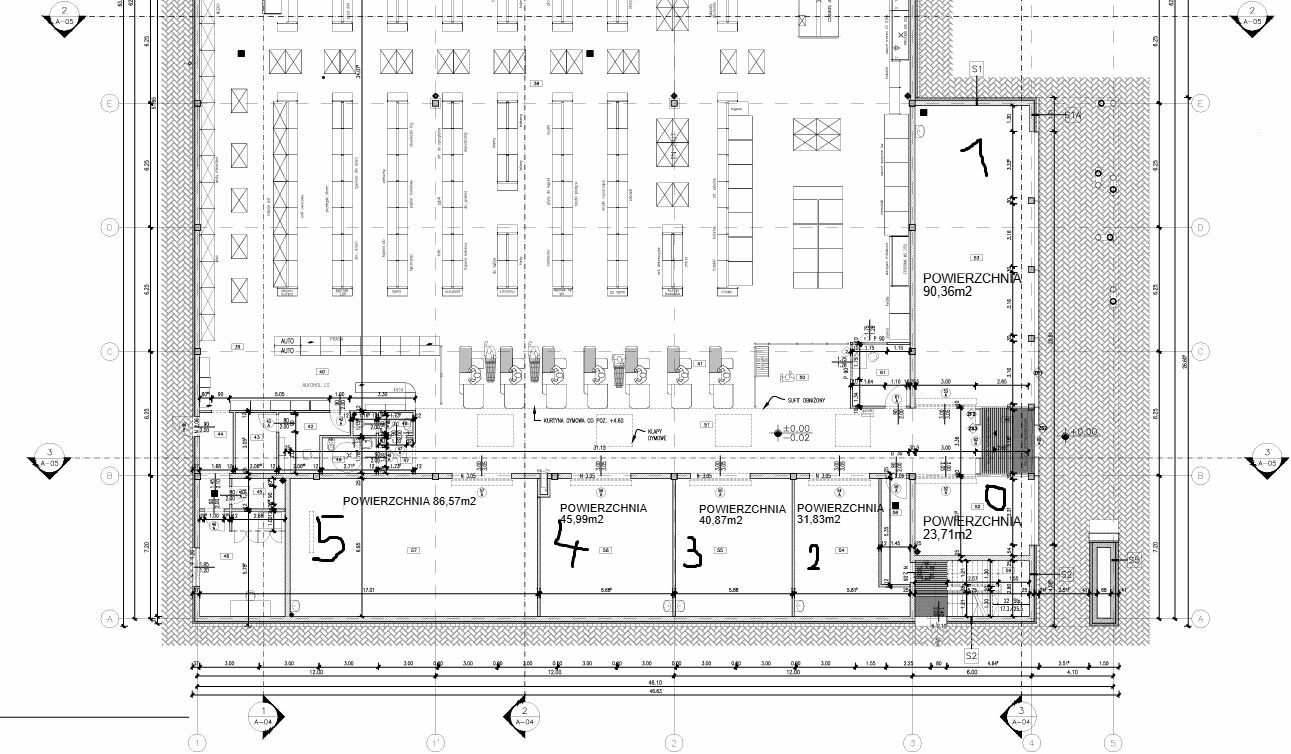
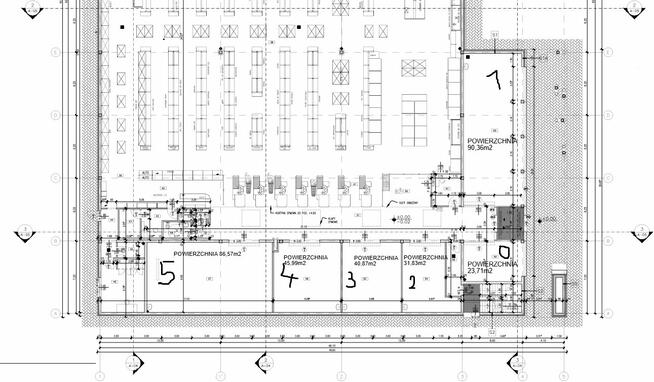
Do wynajęcia lokal handlowo-usługowy o powierzchni 45,99m2 (nr 4 na planie), znajdujący się w budynku Intermarche, ul. Kościuszki 63, 32-065 Krzeszowice.Lokal znajduje się wewnątrz obiektu, w pasażu handlowym, co zapewnia stały przepływ klientów.
Budynek Intermarche generuje stały ruch klientów, co czyni lokal atrakcyjnym miejscem do prowadzenia działalności handlowej lub usługowej. Przy obiekcie dostępny jest również parking dla klientów.
Po więcej informacji zapraszam do kontaktu pod numerem telefonu:
602 - pokaż numer telefonu -
W budynku dostępne są również inne lokale o różnych powierzchniach.
Powiadom o podobnych ogłoszeniach
Lokalizacja: Krzeszowice
Kategoria: Nieruchomości » Biura i lokale » Do wynajęcia
Cena: od 1500 zł do 2000 zł Powierzchnia : od 39 m2 do 53 m2
Chcę otrzymywać powiadomienia o nowych ofertach
Patryk
Konto prywatne
Na Lento.pl od 12 gru 2025
Strona użytkownika
- Wypromuj ogłoszenie
- Zgłoś naruszenie
- Drukuj ulotkę
- Edytuj/usuń ogłoszenie
- Udostępnij ogłoszenie
- Dodaj na Facebook



